Startseite
Städtebau
Freiflächengestaltung
  Straßen und Plätze
  Verkehrsbauten
  Stadtmöbel
Hochbau
Wettbewerbe
Wettbewerbsbetreuung
Büroprofil
Kontakt
Impressum

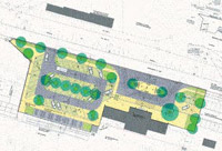
Bahnhofsumfeld Dollnstein, 2002

Das Bahnhofsumfeld mit dem unter Denkmalschutz stehenden Bahnhofsgebäude wies einen vernachlässigten, desolaten Zustand auf. Die Parkplatzflächen waren ungeordnet und zum Großteil asphaltiert. Die Busanfahrt erfolgte über große, ungegliederte Asphaltflächen.

Um den Bahnhofsplatz städtebaulich aufzuwerten und das Angebot des öffentlichen Personennahverkehrs zu verbessern wurden axial zum historischen Bahnhofsgebäude drei Bushaltestellen angeordnet. Auf der Warteinsel stehen zwei Pavillons für Fahrgäste unter je einem Baum. Die 49 P&R-Plätze wurden westlich des Bahnhofsgebäudes als Schrägparker angeordnet und mit Laubbäumen überstellt. Die Fahrradhalle, eine Holz-Stahl-Konstruktion, dient zur räumlichen Begrenzung des Bahnhofsplatzes gegenüber den Schienen.

 

Materialien:
Fahrflächen - Asphalt
Stellplätze - Betonsteine mit Rasenfuge
Gehflächen - Betonsteinpflaster

Baukosten:
Bahnhofsplatz 370.000 EUR
Fahrradhalle/Wartehäuschen 57.000 EUR

zurück Stadtplatz Vohburg