Startseite
Städtebau
Freiflächengestaltung
  Straßen und Plätze
  Verkehrsbauten
  Stadtmöbel
Hochbau
Wettbewerbe
Wettbewerbsbetreuung
Büroprofil
Kontakt
Impressum

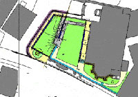
Kirchenumfeld Dollnstein, 2002

Die Kirchenmauer wurde im Jahr 2001 saniert und in Teilbereichen erneuert. Vor der Kirchenmauer lag eine Grünfläche, die durch eine teilweise eingestürzte Mauer von der Fahrbahn abgetrennt war. Neben einer gestalterischen Aufwertung des Kirchenumfeldes sollte die Kirche auch einen behindertengerechten Zugang erhalten.

Die vor der historischen Friedhofsmauer liegende Grünfläche wurde mit einer neuen Natursteinmauer zur Straße hin begrenzt. In den neu geschaffenen Grünflächen dient eine entlang der Mauern verlaufende Rampe als behindertengerechter Zugang.

 

Materialien:
Wege: Granitkleinsteinpflaster, Beton mit Besenstrich, wassergebunden
Straßenflächen: Granitkleinsteinpflaster
Mauer: Natursteinmauerwerk

Baukosten:
110 000 Euro

zurück Bahnhofsumfeld Dollnstein